
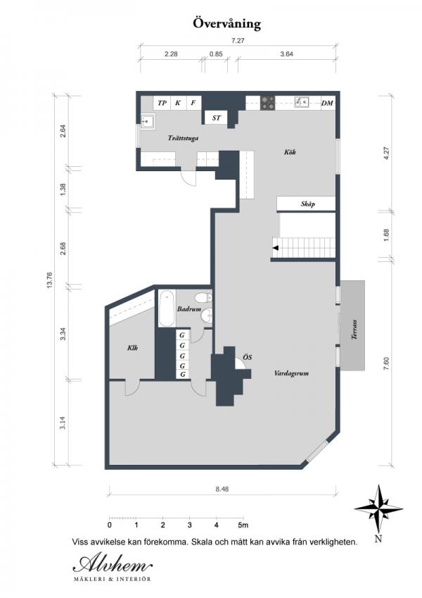
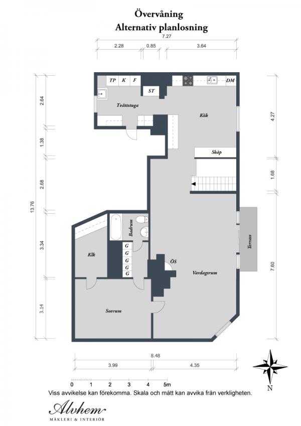
The attic apartment located in the central Linnéstaden area in Gothenburg has a total of three bedrooms, occupying a surface of 132 square meters. Its size was enough for designing an almost idyllic living space, where subtle color additions create perfect contrasts with the white walls and floors.
The living room is the social focal zone of the duplex, with its open floor plan, fireplace, chimney and pitched roof. As darkness falls over the rooftops of Linnéstaden, guests are welcomed to curl up around the fireplace. Three large glass windows (floor to ceiling) lead out to the terrace. Despite its modest size, this outdoor space is perfect for contemplation during precious summer days.

























View the website


